
در حال بارگذاری...


اصالت کالا
اصل
درجه
درجه۱
کاربرد
مخصوص والهنگ
فلاش تانک توکار KWC مدل وال هنگ
برند کی دبلیو سی سال هاست که با نهایت کیفیت محصولات خود را تولید و عرضه می نماید. تمامی محصولات این برند تحت لیسانس KWC سوییس بوده و به لحاظ فنی کاملا قابل اعتماد می باشند. چرا که با بهترین مواد اولیه و پیشرفته ترین متد های ساخت تولید شده است. مواد اولیه با کیفیت ،توسعه و بهبود محصولات و مهندسی به روز از دلایل کیفیت بالای محصولات این برند می باشند.
فلاش تانک توکار کی دبلیو سی مدل وال هنگ با ظرافت و دقت بسیار تولید شده است. و با عملکردی بی نقص در دراز مدت ، انتخابی مطمن برای استفاده از فلاش تانک توکار است.
مشخصات فنی فلاش تانک توکار KWC مدل وال هنگ
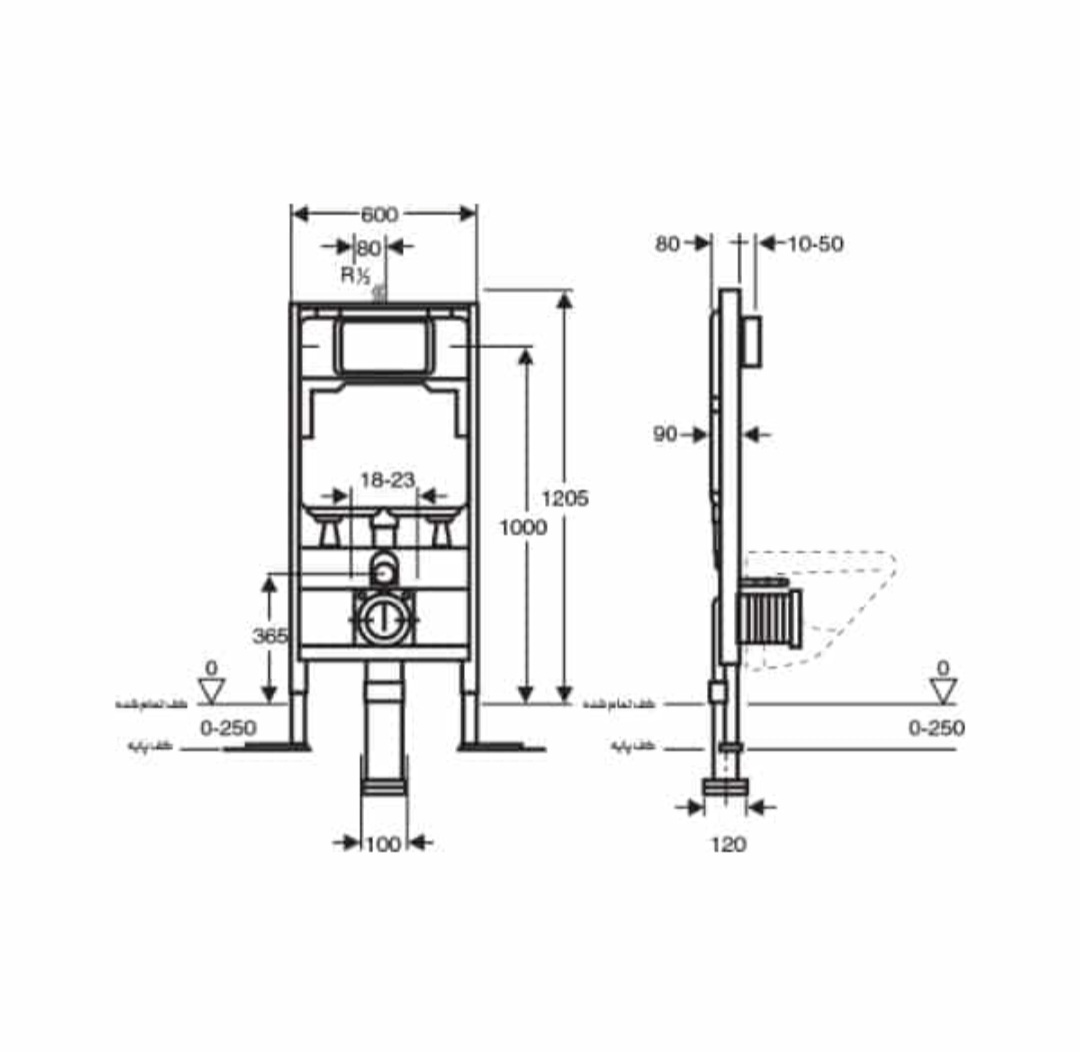
فلاش تانک توکار زمینی کی دبلیو سی مدل وال هنگ از نوع توکار می باشد. این فلاش تانک توکار مخصوص فرنگی بوده و ابعادش 1000(1205)*600*120 میلیمتر می باشد. از مزیت های مهم این فلاش تانک که باعث شده نسبت به رقبای خود برتری پیدا کند می توان به موارد زیر اشاره کرد.جنس بدنه تانک High Resistance BL Polyethylene میباشد،بدنه فوق باریک (ضخامت ۸ میلیمتر)، طراحی مدل GEBERIT UP720 سوئیس کاور سه لایه جلوگیری از تعریق و عایق صدا ، شناور دیافراگمی بدون صدا ، تخلیه دو زمانه قابلیت تنظیم ۲ تا ۸ لیتر، صرفه جویی در مصرف آب،نظافت آسان سرویس بهداشتی، تحمل وزن استراکچر تا 400 کیلوگرم، شاسی این فلاش تانک به سبکی طراحی شده است که عملکردی روان با طول عمر بالا داشته باشد.
از ویژگی دیگر این فلاش تانک توکار می توان به دسترسی آسان به کلیه قطعات داخل مخزن آن اشاره کرد. مخزن فلاش تانک توکار کی دبلیو سی مدل وال هنگ قابلیت نصب بر روی تمامی دیوار ها را دارا می باشد. فلاش تانک توکار کی دبلیو سی مدل کلاسیک دارای ۵ سال ضمانت و ده سال خدمات پس از فروش می باشد.
نکته آخر این که فلاش تانک توکار زمینی KWC مدل کلاسیک، دارای صفحه کلید در طرح ها و رنگ های مختلف می باشد. برند KWC در طراحی محصولات خود، تمامی سلایق را درنظر میگیرد و در طراحی صفحه کلید فلاش تانک توکار نیز با تولید در دو طرح مربعی و دایره ای میتوان این موضوع را موضوع را مشاهده کرد. برای مشاهده این محصولات، میتوانید از طریق دو لینک صفحه کلید مربعی فلاش تانک توکار KWC و صفحه کلید گرد فلاش تانک توکار KWC به صفحه موردنظر خود مراجعه نمایید.